Back to search
Share
Save
Saved
Contact Agent
Login Join
Share
Save
Saved
Share
112  Pulelehua St Kapalua, Kapalua home - photo 2 of 50
112  Pulelehua St Kapalua, Kapalua home - photo 3 of 50
112  Pulelehua St Kapalua, Kapalua home - photo 4 of 50
112  Pulelehua St Kapalua, Kapalua home - photo 5 of 50
112  Pulelehua St Kapalua, Kapalua home - photo 6 of 50
view 50 images
112 Pulelehua St, Lahaina, HI, 96761
Photos
About
Details
Open Houses
Monthly payment
Neighborhood
Amenties & Features
Prices
Schools
Price history
Activity
Taxes
Tour report
Similar
Recently sold
Ask a question
Contact agent
Save
Saved
Map View
Virtual Tour

112 Pulelehua St, Lahaina, HI 96761

$4,900,000  $200,000 Home for sale 3 beds 3 baths 4,504 sqft Neighborhood:  Kapalua
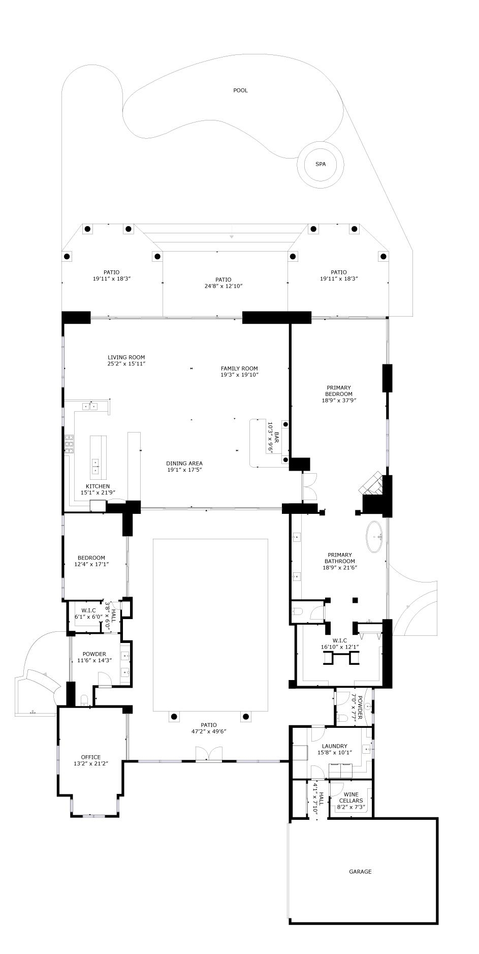
Welcome to 112 Pulelehua Street, an exceptional single-level residence in the gated Pineapple Hill II community of Kapalua Resort. Positioned on a half-acre on the Kapalua Bay Course overlooking the Pacific Ocean, this redesigned 3-bedroom, 2.5-bathroom home offers more than 4,500 sq. ft. of interior living space and over 1,500 sq. ft. of lanais for seamless indoor–outdoor living. A grand set of double doors leads into an open-air atrium filled with tropical landscaping, an architectural centerpiece that brings natural light and Kapalua’s cooling breezes into the heart of the home. The great room follows, defined by soaring ceilings, ?Ohi?a details, and a 30-foot multi-panel sliding glass wall that pockets completely out of view. When opened, the interior blends effortlessly with the pool terrace, golf course frontage, and the ocean beyond, creating a true open-air living experience. The floor plan flows easily between the indoor and outdoor dining areas, a mirrored bar, entertainment space, and a chef’s kitchen. The kitchen has been fully renovated with custom open-louvered cabinetry, 3-inch Volcano granite, and a suite of premium appliances including SubZero refrigeration, a Wolf 48” dual-fuel range, Bosch double ovens, SubZero drawer systems, and a Dacor hood—ideal for cooking and entertaining. The primary suite is a private retreat with floor-to-ceiling sliders, a custom Kapalua stone fireplace, and a peaceful connection to the outdoors. Its spa-inspired bathroom features Volcano granite counters, a freestanding tub, black Kohler fixtures, Toto sinks, a heated towel bar, and new stone flooring. Both guest suites offer comfort and privacy with upgraded lighting, shutters, blinds, fans, and ensuite bathrooms with custom cabinetry, Volcano granite, and refined finishes. A temperature-controlled wine room sits just off the great room—perfectly positioned for entertaining. Outdoor living is at the core of this property. The heated freeform pool and spa sit along a gentle waterfall feature. Multiple lounging and dining areas capture sweeping views of the golf course, ocean, and sunsets over Moloka‘i. Tiki torches, refinished ?Ohi?a posts, new landscaping, and remote-controlled lanai screens enhance the resort-like setting. The home has been extensively improved with new LED lighting throughout, upgraded HVAC systems, a solar hot water system, new exterior paint, irrigation upgrades, new pool equipment, a refreshed driveway, and a new Raynor garage door with epoxy-coated flooring. Located within Kapalua Resort, owners enjoy access to world-class golf, beautiful beaches, coastal trails, dining, tennis, pickleball, and the resort shuttle. 112 Pulelehua Street offers an exceptional combination of design, comfort, and location in one of Maui’s most desirable communities.
Read more

Home details

4,504 sqft interior area
  • Year Built 2002
  • Year Remodeled 2023
  • Original list price $5,300,000
  • Days on market 142
  • Price per sqft $1,088/sqft
  • Baths 3
  • Beds 3
  • Address

    112 Pulelehua St, Lahaina, HI, 96761

  • Total area 4,504 sqft
  • Interior area 4,504 sqft
  • Land area 20,491 sqft
  • nr.of parking places 2
  • Frontage None
  • Pool In Ground
  • Neighborhood Kapalua | Pineapple Hill
  • City of Maui Lahaina
  • Region Kapalua
  • Island Maui
  • View Ocean
  • Virtual Tour View (external link)

Open Houses

No upcoming open houses

Monthly payment

Calculate your monthly payments
Mortgage
$24,984
Taxes
$55,129
HOA dues
$0
$80,113 per month
Mortgage
Down payment
$980,000 / 20%
Interest rate
6.58%
Loan type
30 years
Your amount $24,984 / month

Neighborhood: Kapalua

Nearby & commute
Walkability
Coffee shops
no data
Bus stop
no data
Supermarket
no data
Costco
no data
Hospital
no data
Park
no data
Beach
no data
Elementary school
no data
Middle school
no data
High school
no data
Local airport
no data
6.83 / 20
Car dependent
18-20
15-18
10-15
1-10
Walkability according to the National Walkability Index

Amenities & Features

2 parking places
Utilities
Private, Underground

Kapalua prices

Average price $3.37m
Neighborhood average sales price*
$3.37m
Neighborhood median sales price*
$2.98m
Number or sales*
10
Street median sales price*
$8.88m
*last 6 months

Schools

15 schools in this area
School rating Distance
NR
Maui Preparatory Academy
5095 Napilihau Street, Lahaina, HI 96761
Elementary School
0.609mi
NR
Maui Preparatory Academy
5095 Napilihau Street, Lahaina, HI 96761
Middle School
0.609mi
NR
Maui Preparatory Academy
5095 Napilihau Street, Lahaina, HI 96761
High School
0.609mi
School rating Distance
NR
Maui Preparatory Academy
5095 Napilihau Street, Lahaina, HI 96761
0.609mi
NR
Princess Nahienaena Elementary School
816 Niheu St, Lahaina, HI 96761
7.194mi
NR
Sacred Hearts School & Early Learning Center
239 Dickenson Street, Lahaina, HI 96761
7.997mi
NR
King Kamehameha Iii Elementary School
611 Front St, Lahaina, HI 96761
8.409mi
NR
Waihee Elementary School
2125 Kahekili Hwy, Wailuku, HI 96793
10.205mi
School rating Distance
NR
Maui Preparatory Academy
5095 Napilihau Street, Lahaina, HI 96761
0.609mi
NR
Lahaina Intermediate School
871 Lahainaluna Rd, Lahaina, HI 96761
7.242mi
NR
Sacred Hearts School & Early Learning Center
239 Dickenson Street, Lahaina, HI 96761
7.997mi
NR
St. Anthony Junior/Senior High School
1618 Lower Main St, Wailuku, HI 96793
12.581mi
NR
Iao Intermediate School
260 South Market St, Wailuku, HI 96793
12.615mi
School rating Distance
NR
Maui Preparatory Academy
5095 Napilihau Street, Lahaina, HI 96761
0.609mi
NR
Lahainaluna High School
980 Lahainaluna Rd, Lahaina, HI 96761
6.978mi
NR
Global Technology High School
2050 Main Street, Unit 1C, Wailuku, HI 96793
12.361mi
NR
St. Anthony Junior/Senior High School
1618 Lower Main St, Wailuku, HI 96793
12.581mi
NR
Isaiah Academy for Excellence
432 Waiehu Beach Road, Wailuku, HI 96793
12.634mi
School ratings provided by Greatschools.org © 2023. All rights reserved.

Price history

Price Decrease Apr 13, 2026
Date Event Price $/sqft Source
Apr 13, 2026 Price Decrease $4,900,000 -3.92% $1,087.92 MLS #407964
Mar 7, 2026 Price Decrease $5,100,000 -3.77% $1,132.33 MLS #407964
Dec 6, 2025 For sale $5,300,000 $1,176.73 MLS #407964
Dec 6, 2025 Pending continue to show $5,300,000 $1,176.73 MLS #407964
Dec 2, 2025 New Listing $5,300,000 +58.21% $1,176.73 MLS #407964
Jul 6, 2021 Sold $3,350,000 -2.9% from last sold price $743.78 Public Record
Apr 28, 2021 Pending $3,450,000 $765.99 MLS #385476
Nov 24, 2020 For sale $3,450,000 $765.99 MLS #385476
Nov 19, 2020 Pending $3,450,000 $765.99 MLS #385476
Nov 13, 2020 Price Increase $3,450,000 +4.55% $765.99 MLS #385476
Dec 21, 2019 New Listing $3,300,000 -5.58% $732.68 MLS #385476
Dec 21, 2018 New Listing $3,495,000 +7.7% $775.98 MLS #381095
May 9, 2018 Price Decrease $3,245,000 -2.99% $720.47 MLS #371734
Mar 6, 2018 Price Decrease $3,345,000 -2.9% $742.67 MLS #371734
Jan 17, 2018 Price Decrease $3,445,000 -1.43% $764.88 MLS #371734
Nov 11, 2017 Price Decrease $3,495,000 -1.41% $775.98 MLS #371734
Oct 12, 2017 Price Decrease $3,545,000 -1.39% $787.08 MLS #371734
Jun 19, 2017 Price Decrease $3,595,000 -2.71% $798.18 MLS #371734
Nov 23, 2016 New Listing $3,695,000 -7.51% $820.38 MLS #371734
Oct 3, 2014 New Listing $3,995,000 $886.99 MLS #362285
Show more Show less

Tax & MLS details 112 Pulelehua St, Lahaina, HI, 96761

MLS #407964
Current Property Taxes p/month
$55,129
Property Tax Year
2025
TMK
2420070030000
Topography
Level
Road Type
Private Road
Listed by
Coldwell Banker Island Prop-KP
Cell: 808-250-1163
MLS #
407964
Hawaii House tour report for this home
No reviews yet
Stunning views
Ocean views
Open floorplan
Needs Work
Street noise
Show more Show less
We do not have a Hawaii House tour report for this listing yet.
As soon as we do, we post it here.

Similar homes nearby 112 Pulelehua St in Kapalua

Recently sold nearby 112 Pulelehua St in Kapalua

Ask a question

or Call 808-394-9779

Frequently asked questions for 112 Pulelehua St

What is 112 Pulelehua St?

112 Pulelehua St, Lahaina, HI, 96761 is a single family home located in the Kapalua neighborhood of the Kapalua region in the city of Lahaina in zipcode 96761. This single family home has 3 bedrooms & 3 bathrooms with an interior area of 4504 sqft, on a 20491 sqft lot.

When was this home built and last sold?

This house was build in 2002.

What is the full address of this home?

112 Pulelehua St, Lahaina, HI, 96761.

Are there beaches near 112 Pulelehua St?

No, there aren't.

Based on information from the Realtors Assoc. of Maui. Copyright 2026 by REALTORS® Association of Maui, Inc. Listing courtesy of Coldwell Banker Island Prop-KP. This information is believed to be accurate. It has been provided by sources other than the Realtors Assoc. of Maui and should not be relied upon without independent verification. You should conduct your own investigation and consult with appropriate professionals to determine the accuracy of the information provided and to answer any questions concerning the property and structures located thereon. Featured properties may or may not be listed by the office/agent presenting this brochure.

Listings last updated on April 13, 2026.
Hawaii House Last checked 2 years ago.

112 Pulelehua St, Lahaina, HI, 96761 is a single family home located in the Kapalua neighborhood of the Kapalua region in the city of Lahaina in zipcode 96761. This single family home has 3 bedrooms & 3 bathrooms with an interior area of 4504 sqft, on a 20491 sqft lot. This house was build in 2002.
*Neighborhood & street median sales price are calculated over sold properties over the last 6 months.

Home for sale $4,900,000  $200,000 112 Pulelehua St, Lahaina, HI, 96761 3 beds | 3 baths | 4,504 sqft Save House Remove from Saved