Back to search
Share
Save
Saved
Contact Agent
Login Join
Share
Save
Saved
Share
84-909 Alahele Street  Waianae, Hi vacant land for sale - photo 2 of 18
84-909 Alahele Street  Waianae, Hi vacant land for sale - photo 3 of 18
84-909 Alahele Street  Waianae, Hi vacant land for sale - photo 4 of 18
84-909 Alahele Street  Waianae, Hi vacant land for sale - photo 5 of 18
84-909 Alahele Street  Waianae, Hi vacant land for sale - photo 6 of 18
view 18 images
84-909 Alahele Street, Waianae, HI, 96792
Photos
About
Details
Open Houses
Monthly payment
Neighborhood
Amenties & Features
Prices
Schools
Price history
Activity
Taxes
Tour report
Similar
Recently sold
Ask a question
Contact agent
Save
Saved
Map View

84-909 Alahele Street, Waianae, HI 96792

$679,000  $19,000 Land for sale 2.166 acres Neighborhood:  Maunaolu Estates
10 min drive to Makaha Community Park
8 min drive to the beach
8 min walk to Makaha Golf Course
8 min drive to Makaha
8 min drive to Makaha
About lifestyles
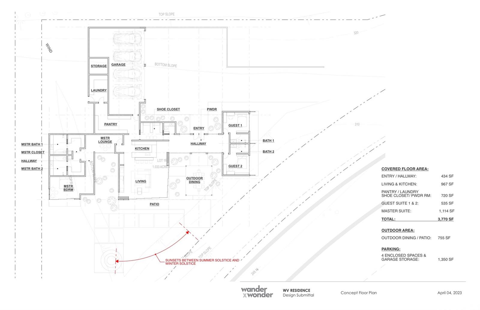
Rare opportunity to build on a 2.166 acre (94,333 sqft) estate lot in the gated community of Mauna'Olu Estates. This expansive parcel offers privacy, cooling breezes, and beautiful mountain, valley, and ocean-facing views within one of West O'ahu’s most desirable hillside neighborhoods. A meaningful head start has already been completed, including a graded driveway and established house pad, providing a strong foundation for future development. A topographic survey, conceptual architectural plans and renderings, and HOA documents are available in the listing to assist buyers in planning their vision. Plans are conceptual only and not permit-approved; buyer may revise or work with the existing architect. Mauna'Olu Estates is known for its underground utilities, wide paved roads, and lush tropical landscaping, offering a peaceful and well maintained environment just minutes from Makaha Beach, hiking trails, golf, shopping, dining, and schools. An exceptional opportunity for a discerning buyer or builder seeking a premium estate sized lot in an established, gated community. Build now or hold as a long term investment.
Read more

Details

Oahu island
  • Year Built -
  • Days on market 443
  • Price per sqft $7/sqft
  • Address

    84-909 Alahele Street, Waianae, HI, 96792

  • Neighborhood Maunaolu Estates
  • Land area 94,333 sqft / 2.166 acres
  • City of Oahu Waianae
  • Region Leeward
  • Island Oahu
  • Land tenure FS - Fee Simple
  • Maintenance fee $256
  • Monthly association fee $49
  • View Mountain, Ocean, Sunset

Open Houses

No upcoming open houses

Monthly payment

Calculate your monthly payments
Mortgage
$3,463
Taxes
$176
HOA dues
$305
$3,944 per month
Mortgage
Down payment
$135,800 / 20%
Interest rate
6.58%
Loan type
30 years
Your amount $3,463 / month

Neighborhood: Maunaolu Estates

Maunaolu Estates
Nearby & commute
Walkability
Coffee shops
no data
Bus stop
no data
Supermarket
no data
Costco
no data
Hospital
no data
Park
no data
Beach
no data
Elementary school
no data
Middle school
no data
High school
no data
Local airport
no data
9.33 / 20
Car dependent
18-20
15-18
10-15
1-10
Walkability according to the National Walkability Index

Amenities & Features

Land Use
Residential
Easements
Other
Sewer
Connect Required
Restrictions
Covenants
Improvements
None
Possible Use
Single Family
Utilities Included
Sewer, Underground Electricity, Water

Maunaolu Estates prices

Average price $850.29k
Neighborhood average sales price*
$850.29k
Neighborhood median sales price*
$840k
Number or sales*
49
Street median sales price*
$799.95k
Median sale price Colony at the Peninsula*
$790k
*last 6 months

Schools

15 schools in this area
School rating Distance
NR
Makaha Elementary School
84200 Ala Naauao Place, Waianae, HI 96792
Elementary School
1.712mi
NR
Makaha Elementary School
84200 Ala Naauao Place, Waianae, HI 96792
Middle School
1.712mi
NR
Kamaile Academy
85180 Ala Akau St, Waianae, HI 96792
High School
1.715mi
School rating Distance
NR
Makaha Elementary School
84200 Ala Naauao Place, Waianae, HI 96792
1.712mi
NR
Kamaile Academy
85180 Ala Akau St, Waianae, HI 96792
1.715mi
NR
Ka Waihona O Ka Na`auao Charter School
85-1429 Wai`anae Valley Road, Waianae, HI 96792
2.137mi
NR
Waianae Elementary School
85220 McArthur St, Waianae, HI 96792
2.477mi
NR
Adventist Malama Elementary School
86-72 Farrington Highway, Waianae, HI 96792
2.992mi
School rating Distance
NR
Makaha Elementary School
84200 Ala Naauao Place, Waianae, HI 96792
1.712mi
NR
Kamaile Academy
85180 Ala Akau St, Waianae, HI 96792
1.715mi
NR
Waianae Intermediate School
85626 Farrington Hwy, Waianae, HI 96792
1.958mi
NR
Waianae Elementary School
85220 McArthur St, Waianae, HI 96792
2.477mi
NR
Adventist Malama Elementary School
86-72 Farrington Highway, Waianae, HI 96792
2.992mi
School rating Distance
NR
Kamaile Academy
85180 Ala Akau St, Waianae, HI 96792
1.715mi
NR
Waianae High School
85251 Farrington Hwy, Waianae, HI 96792
1.936mi
NR
Maili Bible School
87-138 Gilipake Street, Waianae, HI 96792
4.511mi
NR
Waialua High & Intermediate School
67160 Farrington Hwy, Waialua, HI 96791
7.15mi
NR
Nanakuli High & Intermediate School
89980 Nanakuli Ave, Waianae, HI 96792
7.389mi
School ratings provided by Greatschools.org © 2023. All rights reserved.

Price history

Price Decrease Aug 23, 2024
Date Event Price $/sqft Source
Aug 23, 2024 Price Decrease $720,000 -0.69% $7.63 MLS #202407116
Apr 2, 2024 New Listing $725,000 -3.33% $7.69 MLS #202407116
Mar 16, 2024 Expired $750,000 $7.95 MLS #202324959
Nov 11, 2023 New Listing $750,000 $7.95 MLS #202324959
Nov 2, 2023 Coming Soon $750,000 -4.94% $7.95 MLS #202324959
Oct 7, 2023 Expired $789,000 $8.36 MLS #202313303
Jun 7, 2023 New Listing $789,000 -0.13% $8.36 MLS #202313303
Mar 28, 2023 Expired $790,000 $8.37 MLS #202220384
Feb 13, 2023 Price Decrease $790,000 -1.25% $8.37 MLS #202220384
Sep 30, 2022 New Listing $800,000 $8.48 MLS #202220384
Sep 7, 2022 Expired $800,000 $8.48 MLS #202204310
Jul 7, 2022 Price Decrease $800,000 -11.11% $8.48 MLS #202204310
Mar 9, 2022 New Listing $900,000 +80% $9.54 MLS #202204310
Sep 30, 2020 Sold $500,000 $5.30 Public Record
Sep 7, 2020 Expired $500,000 $5.30 MLS #202006965
Aug 10, 2020 Active Under Contract $500,000 $5.30 MLS #202006965
Mar 23, 2020 New Listing $500,000 $5.30 MLS #202006965
Mar 23, 2020 Expired $500,000 $5.30 MLS #201924460
Sep 10, 2019 New Listing $500,000 $5.30 MLS #201924460
Show more Show less

Tax & MLS details 84-909 Alahele Street, Waianae, HI, 96792

MLS #202503283
Current Property Taxes p/month
$176
Assessed Improvement value
$0
TMK
1-8-4-029-097-0000
Flood Zone
Zone D
Topography
Up Slope
Total Assessed value
$602,900
Listed by
Avatina LLC
(808) 772-0790
MLS #
202503283
Hawaii House tour report for this land
No reviews yet
Stunning views
Ocean views
Open floorplan
Needs Work
Street noise
Show more Show less
We do not have a Hawaii House tour report for this listing yet.
As soon as we do, we post it here.

Similar homes nearby 84-909 Alahele Street in Maunaolu Estates

Recently sold nearby 84-909 Alahele Street in Maunaolu Estates

Ask a question

or Call 808-394-9779

Frequently asked questions for 84-909 Alahele Street

What is 84-909 Alahele Street?

84-909 Alahele Street is a piece of land, of approximate 2.166 acres (about +/- 94,333 sqft).

What is the full address of this land?

84-909 Alahele Street, Waianae, HI, 96792.

Are there beaches near 84-909 Alahele Street?

The nearest beach is 1.913 miles away. It should take about 8 min drive.

Based on information from the Multiple Listing Service of HiCentral MLS, Ltd. Copyright 2026 by HiCentral Mls, Ltd. Listing courtesy of Avatina LLC. Some active listings appearing on this site may be listed by other REALTORS®. If you are interested in those active listings, our company may represent you as the buyer's agent. If the active listing you are interested in is our company's active listing, you may speak to one of our agents regarding your options for representation. Hawaii House Inc. is a real estate brokerage firm licensed to conduct business in the State of Hawaii. Information deemed reliable, but not guaranteed.

Listings last updated on February 04, 2026.
Hawaii House Last checked 1 week ago.

Land for sale $679,000  $19,000 84-909 Alahele Street, Waianae, HI, 96792 2.166 acres Save House Remove from Saved